Le projet Les Jardins du Coteau est un beau projet qui allie intimité, nature et tranquillité.
Situé à Mascouche, à environ 20 kilomètres au nord de Montréal, ce projet bénéficie de la proximité de deux autoroutes majeures (640 et 25), de nombreux terrains de jeux, d’une école primaire et secondaire, d’un complexe commercial au centre-ville de Mascouche ainsi que d’un tout nouveau réseau de pistes cyclables. Construit sur l’espace de l’ancien terrain de golf du quartier du Coteau, dans une région réputée pour sa qualité de vie, ses vastes espaces verts et ses nombreux sentiers naturels, le projet comprendra 750 unités de conception moderne.
Cette gamme impressionnante de cottages et de plain-pieds proposés avec un rapport qualité-prix exceptionnel se distingue par ses constructions dépassant les normes les plus élevées de l’industrie. Livrés avec une liste standard de fonctionnalités impressionnantes, ces espaces de vie modernes sont adaptés à tous les besoins et à tous les budgets, et promettent à leurs futurs propriétaires confort, sécurité et tranquillité d’esprit.
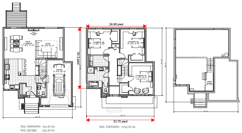
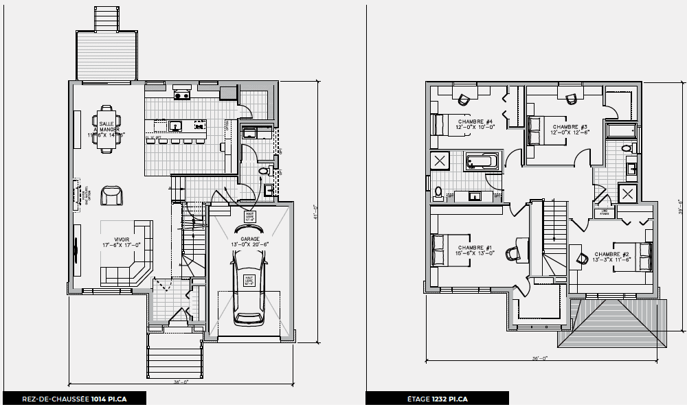
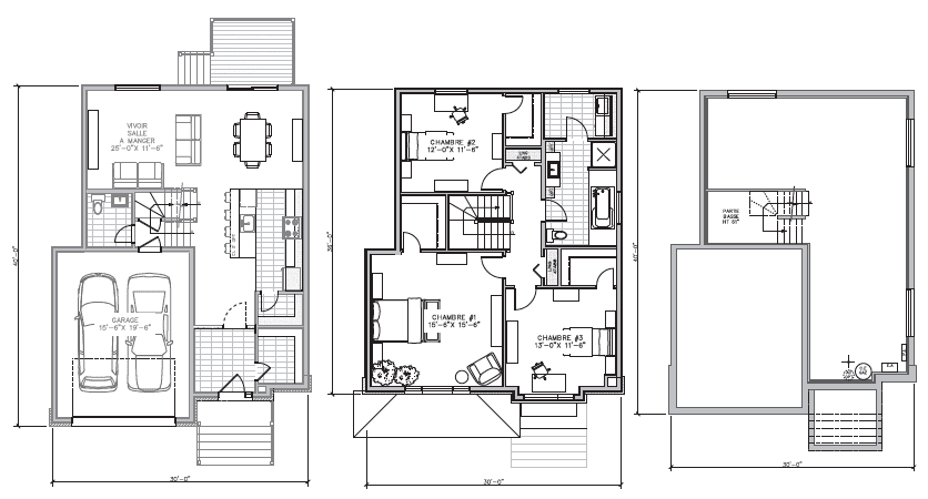
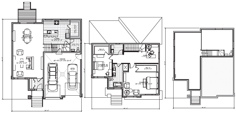
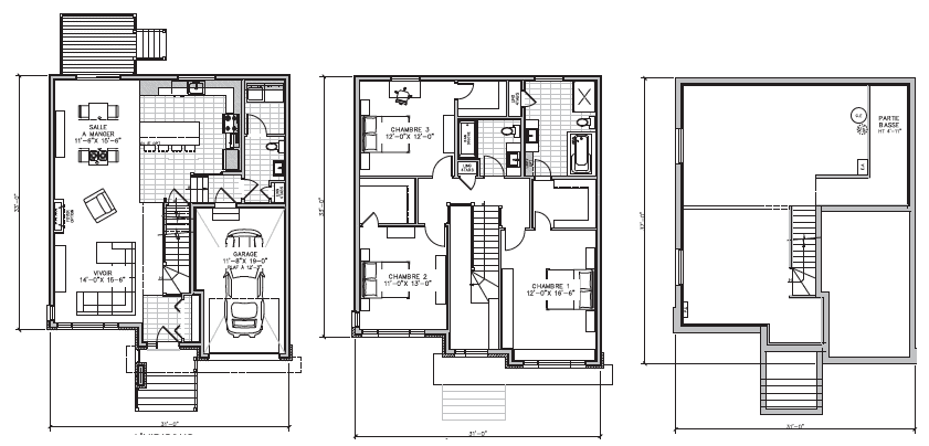
SUPERFICIE HABITABLE
2 246 pi2
UN SEUL TERRAIN
DISPONIBLE

Caractéristiques et inclusions
en céramique
laminé (au RDC et à l'étage)
RDC à l'étage (non teint)
(Noire en façade)
normes énergétiques
Services de quartier
- Terrain vert, milieu naturel conservé
- Plusieurs propriétés sans voisin arrière (zone boisée)
- À proximité des grands axes routiers (640 et 25)
- École primaire et aires de jeux au cœur du projet
- École secondaire à distance de marche
- Réseau de sentiers naturels et pistes cyclables
- Train de banlieue, transport en commun
- Centre commerciaux et sportifs
Découvrez nos modèles
- 1